Gerenoveerde vrijstaande woning met loods – Singel 15, Garyp
Aan een rustige straat in Garyp staat deze vrijstaande woning uit 1958, die in 2024 grondig is verbouwd. Het resultaat? Een instapklare woning met moderne afwerking, veel ruimte én een grote loods op eigen terrein.
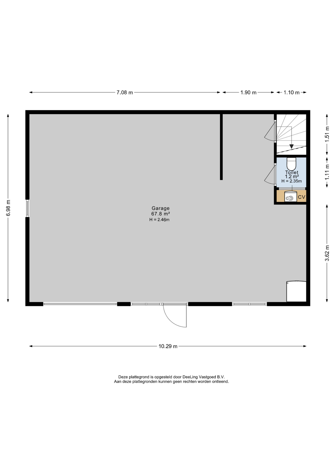
De woning biedt alles wat je nodig hebt: een lichte woonkamer, ruime woonkeuken met kookeiland, drie slaapkamers, een moderne badkamer én een praktische zolder. Buiten vind je een verzorgde tuin met veranda en een royale loods met roldeur, vloerverwarming, krachtstroom en hefbrug (ter overname) ideaal voor werk of hobby aan huis.
Indeling
Begane grond
Via de hal met toilet kom je in de woonkamer, waar veel licht naar binnen valt. De woonkeuken aan de achterzijde is vernieuwd en voorzien van een kookeiland en inbouwapparatuur. Aansluitend vind je de bijkeuken en inpandigeberging. Alles is strak afgewerkt en met zorg gemoderniseerd.
Verdieping
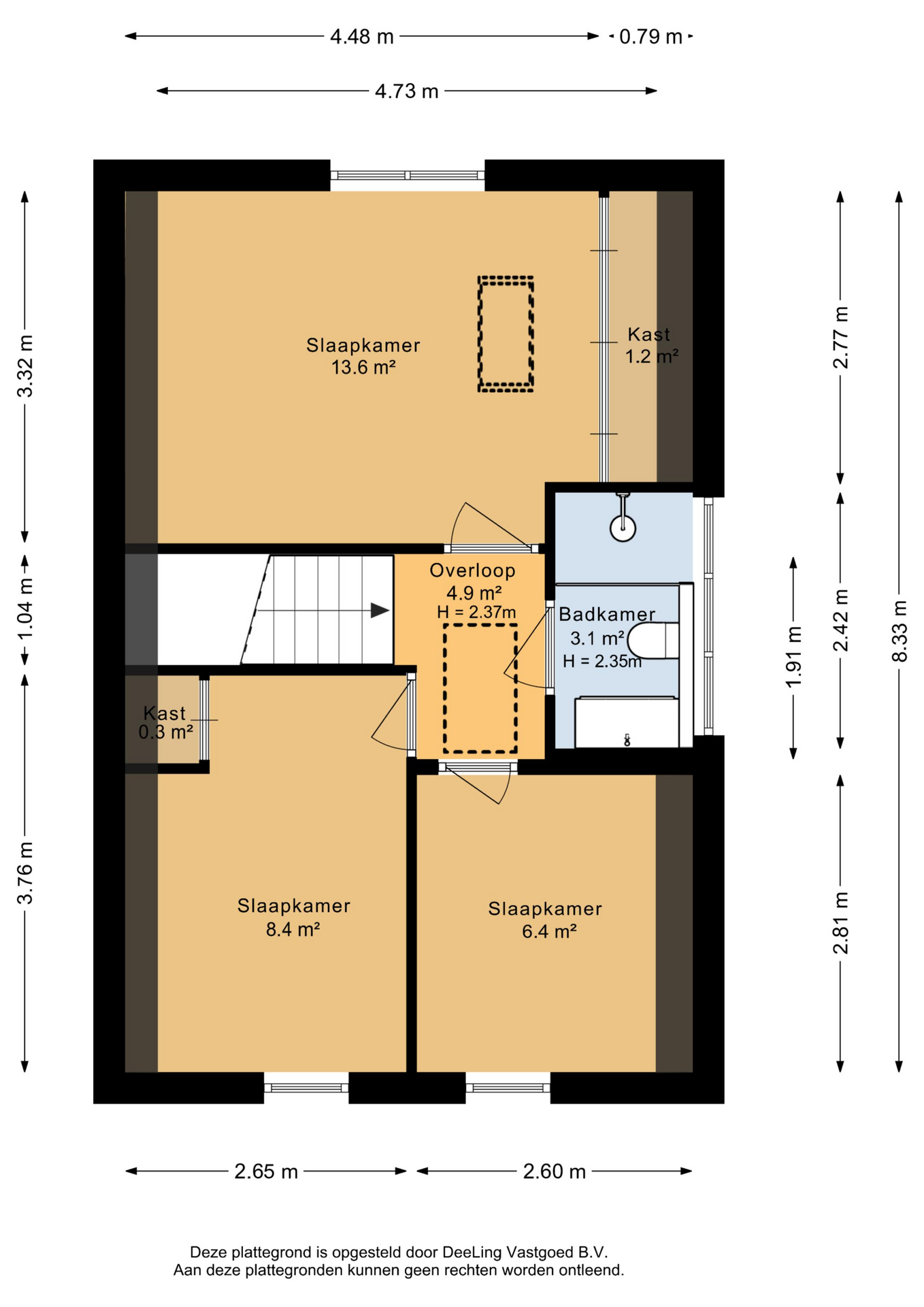
Op de verdieping zijn drie slaapkamers en een moderne badkamer met inloopdouche, tweede toilet en wastafelmeubel.
Zolder
De zolderverdieping is bereikbaar via een vlizotrap en biedt extra ruimte voor opslag.
Buiten
De achtertuin is onderhoudsvriendelijk en voorzien van een overkapping waar je lekker beschut kunt zitten. De vrijstaande loods achter op het perceel is een groot pluspunt: met onder andere krachtstroom, vloerverwarming, hefbrug (ter overname) en eigen toilet biedt deze ruimte volop mogelijkheden voor handige klussers.
Bijzonderheden:
Bouwjaar: 1958
In 2024 grondig verbouwd en gemoderniseerd
Energielabel B
10 zonnepanelen
Volledig instapklaar
Ruime vrijstaande loods
Ruim perceel met diepe oprit
Bar in de loods wordt verwijderd
Hef brug ter overname
Gelegen in een rustige straat in Garyp
Ben je op zoek naar een ruime, moderne woning met volop buitenruimte en extra mogelijkheden? Dan is Singel 15 in Garyp zeker een bezoek waard. Neem gerust contact op, we laten je de woning graag zien.
Aan deze presentatie kunnen geen rechten worden ontleend.
Toelichtingsclausule NEN2580
De Meetinstructie is gebaseerd op de NEN2580. De Meetinstructie is bedoeld om een meer eenduidige manier van meten toe te passen voor het geven van een indicatie van de gebruiksoppervlakte. De Meetinstructie sluit verschillen in meetuitkomsten niet volledig uit, door bijvoorbeeld interpretatieverschillen, afrondingen of beperkingen bij het uitvoeren van de meting.















