BURGUM – DE BOEK 4
Op een fraaie en ruime locatie, tegenover een gemeentelijk groen, staat deze goed onderhouden twee-onder-een-kapwoning met aangebouwde garage/berging. Hier woon je rustig, met alle ruimte om je heen én een fijne woonomgeving.
De woning is gebouwd in 1989 en in 1996 aan de achterzijde uitgebouwd, waardoor een mooie eetkeuken is ontstaan. Recent is het toilet en de badkamer vernieuwd, wat zorgt voor een frisse en eigentijdse uitstraling.
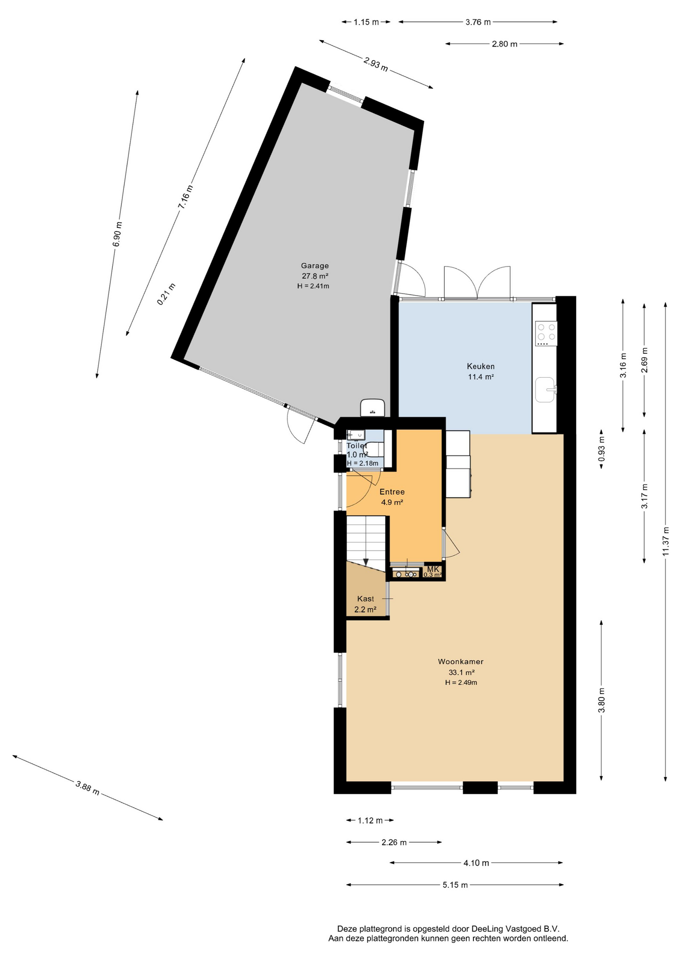
Indeling
Via de zij-entree kom je binnen in de hal met een dichte trapopgang, een vernieuwde meterkast en een moderne toiletruimte.
De L-vormige woonkamer is heerlijk licht en ruim en staat in open verbinding met de halfopen keuken. De vaste kast onder de trap zorgt voor extra praktische opbergruimte.
De eetkeuken met tuindeuren is uitgevoerd met een stijlvol L-vormig keukenblok en voorzien van diverse onderkasten en o.a. voorzien van een vaatwasser en koelkast. Er is volop plek voor een eettafel en via de dubbele tuindeuren loop je zo de tuin in.
Eerste verdieping
Op de eerste verdieping bevinden zich drie slaapkamers. Aan de voorzijde liggen de ouderslaapkamer en een werk/studeerkamer. Aan de achterzijde vind je een ruime derde slaapkamer, eveneens met dakraam.De badkamer is recent gemoderniseerd en voorzien van douchehoek en badmeubel .
Tweede verdieping
Via een vaste trap bereik je de tweede verdieping. Op de overloop bevinden zich de heteluchtketel en de aansluitingen voor wasapparatuur. Daarnaast is er een vierde slaapkamer met een groot dakraam.
Garage en buitenruimte
De garage is aangebouwd en de oprit biedt plaats aan twee auto’s.
De diepe achtertuin beschikt over meerdere terrassen, waardoor je op elk moment van de dag kunt kiezen voor zon of juist een plekje in de schaduw. Achterin loopt de tuin in een puntvorm uit.
Kortom: een ruime en complete gezinswoning op een mooie, groene locatie in Burgum, waar je zo in kunt.
Geïnteresseerd?
Neem gerust contact met ons op voor een bezichtiging. We laten je deze woning graag zien!
Deze informatie is door ons met de nodige zorgvuldigheid samengesteld, veelal aan de hand van de door verkoper aan ons ter hand gestelde gegevens en tekeningen. Onzerzijds wordt echter geen enkele aansprakelijkheid aanvaard voor enige onvolledigheid, onjuistheid of anderszins, dan wel de gevolgen daarvan. Dit geldt voor onder meer de opgegeven maten, oppervlakten, isolatie en ouderdom van technische installaties.
Toelichtingsclausule NEN2580: De Meetinstructie is gebaseerd op de NEN2580. De Meetinstructie is bedoeld om een meer eenduidige manier van meten toe te passen voor het geven van een indicatie van de gebruiksoppervlakte. De Meetinstructie sluit verschillen in meetuitkomsten niet volledig uit, door bijvoorbeeld interpretatieverschillen, afrondingen of beperkingen bij het uitvoeren van de meting.













