Vrijstaand wonen met ruimte, rust en volop mogelijkheden
Landelijk wonen met ruimte en vrijheid, dat is precies wat Inialoane 96 te bieden heeft. Aan de Inialoane in Garyp staat deze vrijstaande woonboerderij op een royaal perceel van circa 1,8 hectare. Een unieke kans voor wie landelijk wil wonen met mogelijkheden voor bijvoorbeeld hobbydieren, paarden of een grote moestuin.
Veel woonruimte en praktische indeling
De woning is eenvoudig maar functioneel ingedeeld, met onder andere een ruime woonkamer, een keuken en slaap- en badkamer op de begane grond. Ben je op zoek naar een gezinswoning of wil je levensloopbestendig wonen? Het is hier mogelijk.
Ideaal voor dierenliefhebbers
Met ruim 18.000 m² eigen grond rondom de woning is dit een zeer geschikte plek voor dierenliefhebbers. Denk aan het houden van paarden, schapen, geiten of kippen – de ruimte is er al. Het ruime erf, de graslanden en de landelijke ligging maken het tot een ideale plek om buiten te leven en te werken met dieren.
Wat deze plek zo aantrekkelijk maakt:
• Vrijstaande woonboerderij op ruime kavel
• Bouwjaar 1872, functionele indeling met mogelijkheden
• Ca. 18.000 m² eigen grond
• Rustige ligging in het buitengebied van Garyp
• Perfect voor dierenliefhebbers, hobbyboeren of tuinliefhebbers
• Centrale ligging t.o.v. Leeuwarden, Drachten en Burgum
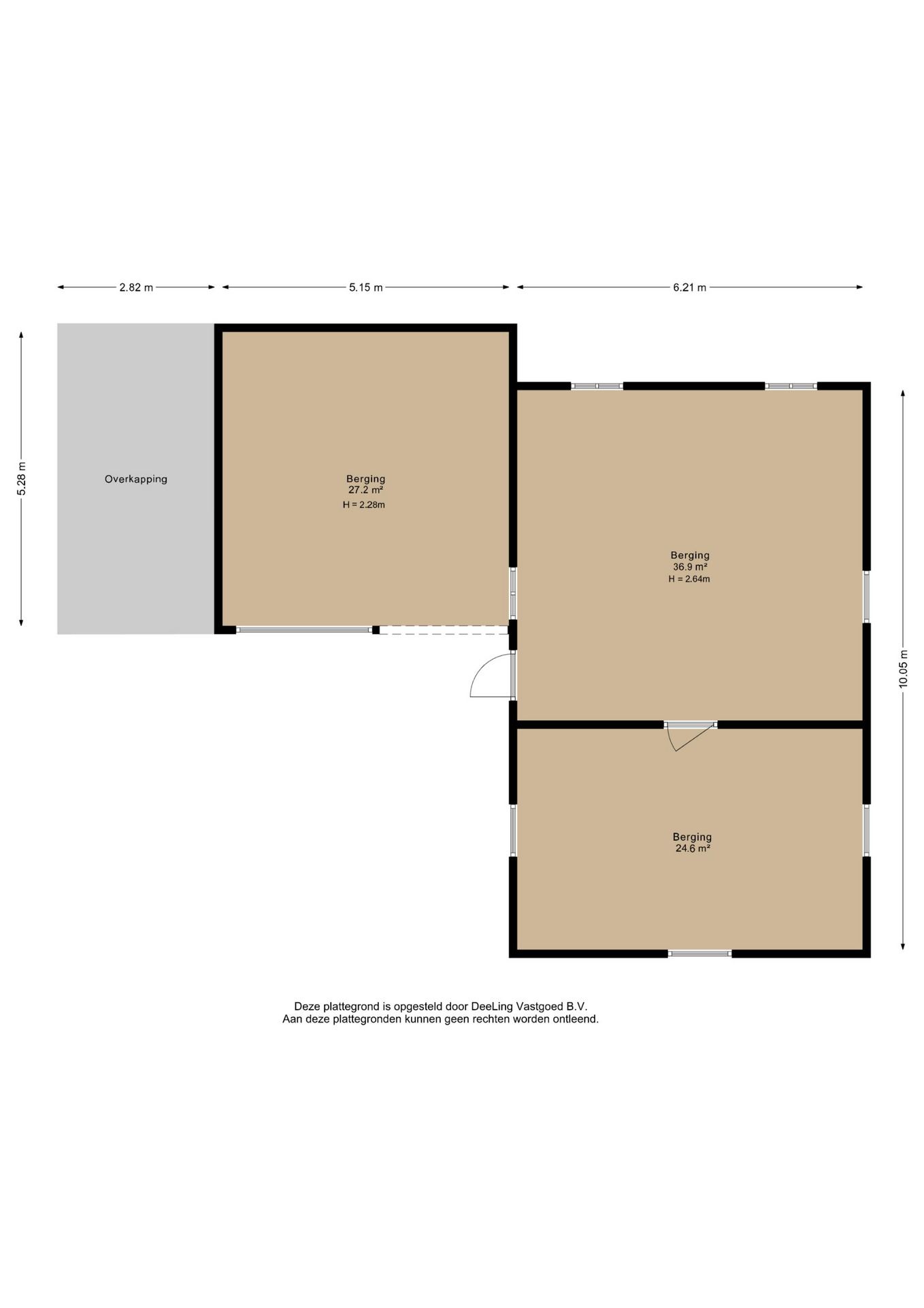
Let op: De schuur aan de linkerzijde van de woning behoort niet tot het verkochte perceel en is geen onderdeel van deze woning.
Ligging
Garyp is een gezellig en actief dorp met basisvoorzieningen zoals een supermarkt, basisschool en sportverenigingen. Binnen enkele minuten ben je op de N31, waarmee plaatsen als Leeuwarden, Drachten en Burgum goed bereikbaar zijn.
Deze informatie is door ons met de nodige zorgvuldigheid samengesteld, veelal aan de hand van de door verkoper aan ons ter hand gestelde gegevens en tekeningen. Onzerzijds wordt echter geen enkele aansprakelijkheid aanvaard voor enige onvolledigheid, onjuistheid of anderszins, dan wel de gevolgen daarvan. Dit geldt onder meer voor de opgegeven maten, oppervlakten, isolatie en ouderdom van technische installaties.
Toelichtingsclausule NEN2580
De Meetinstructie is gebaseerd op de NEN2580. De Meetinstructie is bedoeld om een meer eenduidige manier van meten toe te passen voor het geven van een indicatie van de gebruiksoppervlakte. De Meetinstructie sluit verschillen in meetuitkomsten niet volledig uit, door bijvoorbeeld interpretatieverschillen, afrondingen of beperkingen bij het uitvoeren van de meting.














