Het Brekkense Wiel 30, Lemmer
Wonen én recreëren aan het water
Op zoek naar een plek waar je iedere dag het vakantiegevoel ervaart? Welkom aan het Brekkense Wiel 30 in Lemmer! Deze tussenwoning ligt direct aan het water en biedt je het beste van twee werelden: permanent wonen of heerlijk recreëren want het mag hier allebei. Een unieke kans in het hart van watersportgebied Friesland.
Direct aan vaarwater met eigen aanlegsteiger
Deze woning heeft niet alleen een fantastisch uitzicht over het water, maar ook een eigen aanlegsteiger. Stap vanuit je tuin zo op de boot en vaar in alle vrijheid richting het IJsselmeer of de Friese meren. Ideaal voor watersportliefhebbers of wie gewoon wil genieten van rust, ruimte en natuur.
Comfortabel en modern wonen
Binnen tref je een lichte en sfeervolle woonkamer met grote ramen en een fijne verbinding naar de tuin. De moderne open keuken is van alle gemakken voorzien en biedt volop werk- en opbergruimte. Op de verdieping bevinden zich meerdere slaapkamers en een nette badkamer. Alles is keurig onderhouden en instapklaar.
Buitenleven op z’n best
De achtertuin is een fijne combinatie van groen en houten terrassen, met meerdere zitplekken aan het water. Of je nu in de zon wilt ontbijten, gezellig wilt borrelen of gewoon wilt ontspannen met uitzicht op het water het kan hier allemaal.
Indeling Begane grond:
Binnenkomst in de hal met kleine badkamer met douche en toilet en trapopgang. De lichte woonkamer met grote raampartijen biedt prachtig uitzicht over het water. Aansluitend vind je de open keuken, voorzien van inbouwapparatuur en voldoende werkruimte. Vanuit de woonkamer stap je zo de zonnige tuin in, direct aan het water.
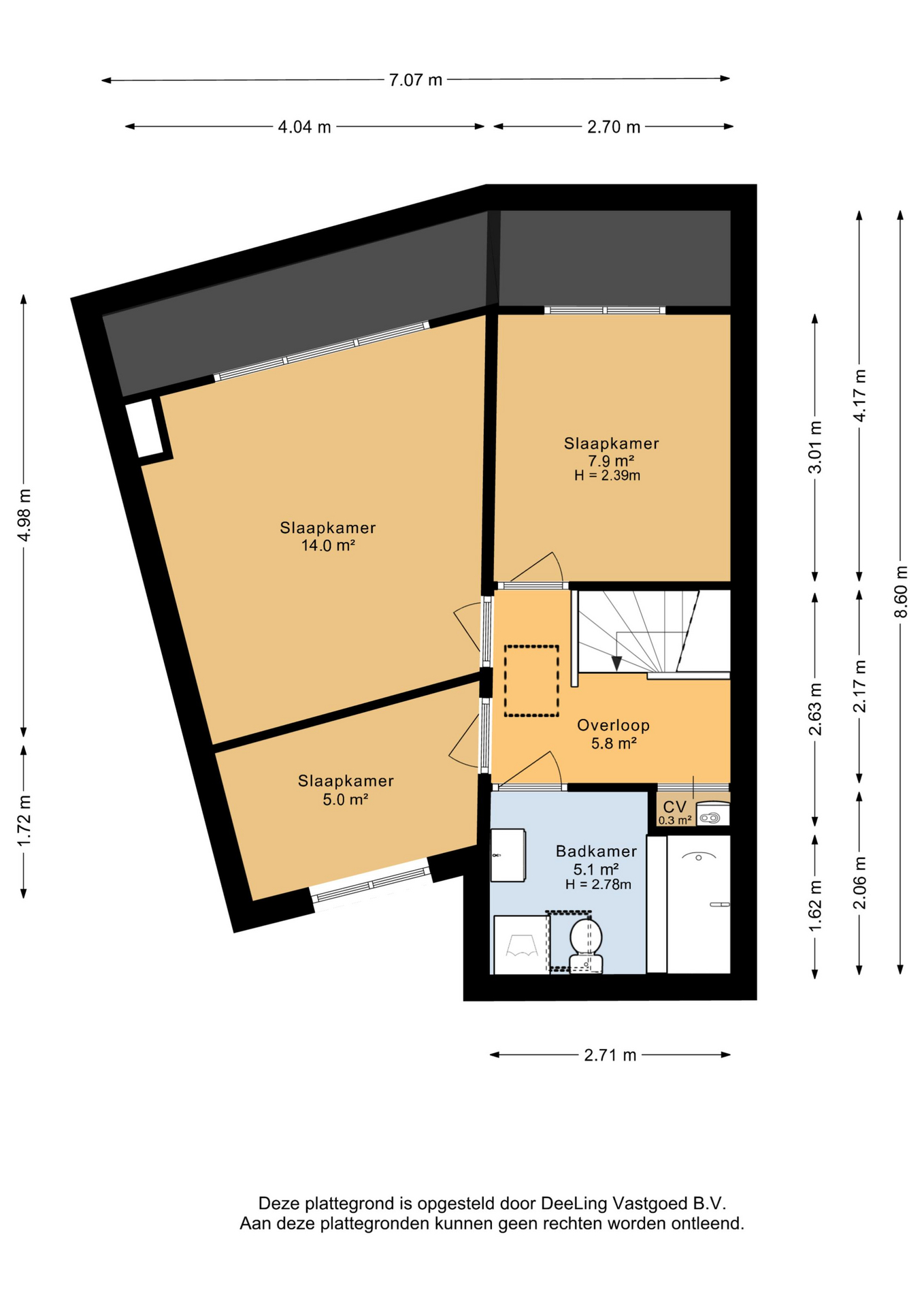
Verdieping:
Op de verdieping zijn drie slaapkamers en een nette badkamer met douche, wastafel en tweede toilet. De slaapkamers zijn licht en praktisch ingedeeld.
Buitenruimte:
De achtertuin ligt pal aan het water en heeft meerdere terrassen, waaronder een fijne plek direct aan de aanlegsteiger. Hier geniet je in alle rust van het buitenleven, met bootverkeer als bewegend schilderij op de achtergrond. Ook aan de voorzijde is een eigen parkeerplaats aanwezig.
Bijzonderheden:
Permanente bewoning én recreatief gebruik toegestaan
Eigen aanlegsteiger aan doorgaand vaarwater
Zonnige tuin op het zuidoosten
Instapklare woning, goed onderhouden
Parkeerplek op eigen terrein
Nabij strand, centrum Lemmer en uitvalswegen
Locatie
Het Brekkense Wiel is een geliefde woonomgeving in Lemmer. Watersportliefhebbers kunnen hier hun hart ophalen, met directe vaarverbindingen naar de Friese meren en het IJsselmeer. Het centrum van Lemmer met winkels, restaurants en het strand ligt op korte fietsafstand.
Nieuwsgierig?
Plan dan snel een bezichtiging in – we laten je deze bijzondere woning graag zien!











