Verhuurd

Schoolstraat 19

9251 EA
210m2 oppervlakte

Representatieve kantoorruimte met centrumbestemming in monumentaal pand.

Op unieke locatie midden in het centrum van Burgum staat dit prachtige monumentale pand. Het pand is in de afgelopen jaren grondig gerenoveerd waarbij het karakter van het pand in takt is gebleven. Dit pand was voorheen in gebruik als kantoor, echter heeft het een centrumbestemming gekregen. Hierdoor is het pand voor meerdere doeleinden geschikt.

Wilt u meer weten over de mogelijkheden van dit prachtige rijksmonument neem dan geheel vrijblijvend contact met ons op.

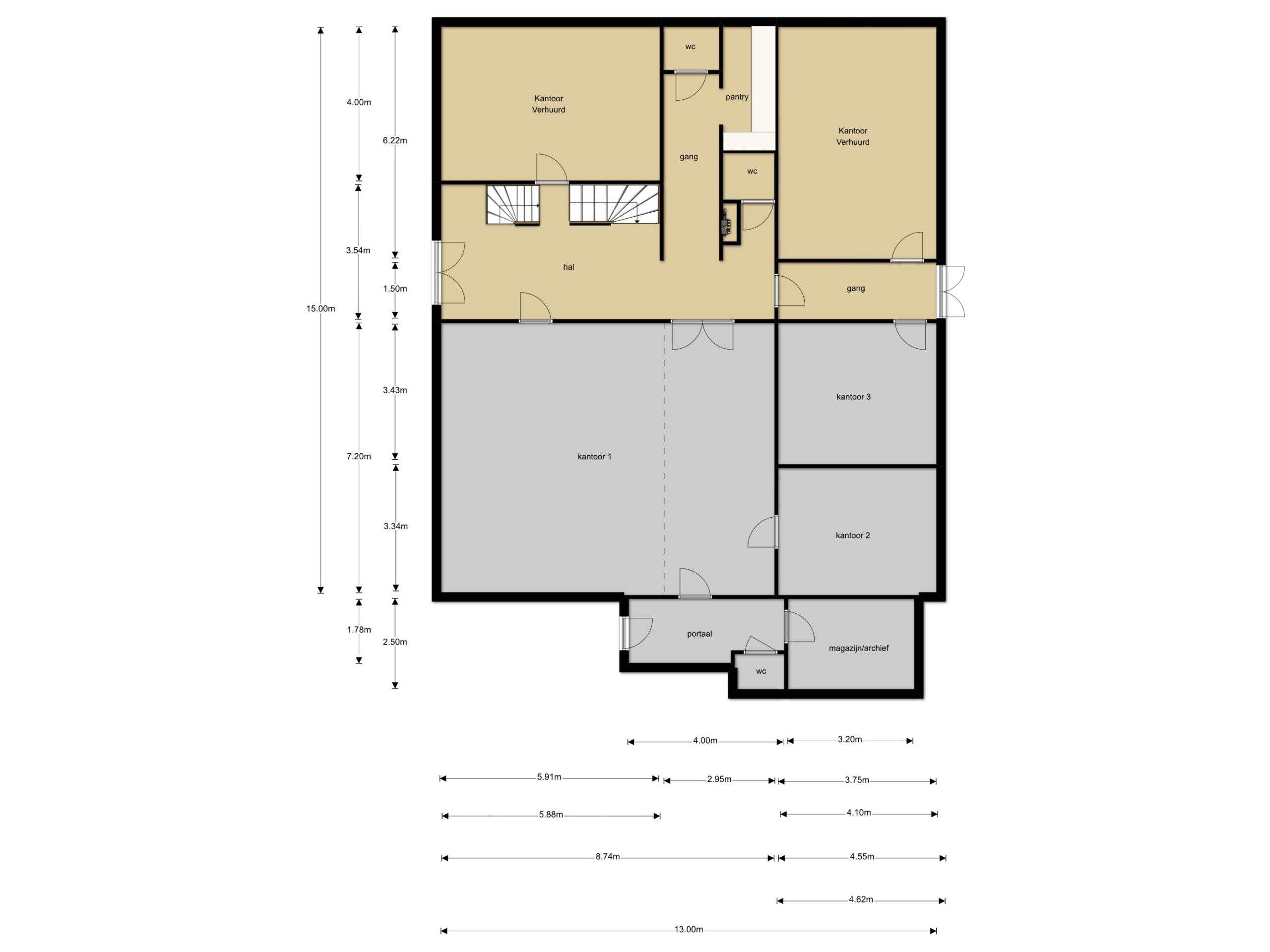
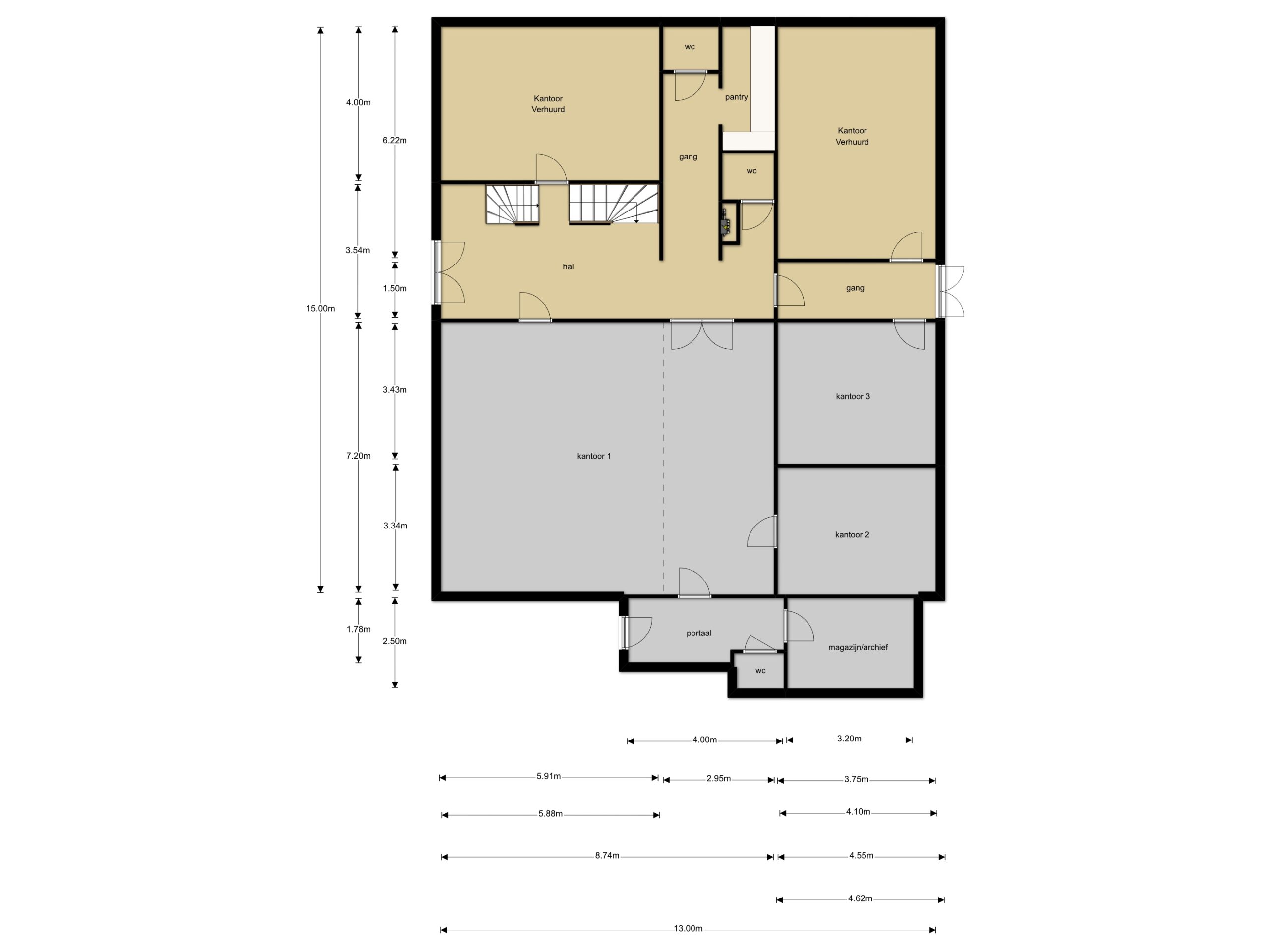
Indeling:
Bereikbaar via gemeenschappelijke hal of eigen ingang, winkel/kantoorruimte van ca. 65m² met 2 ruimtes van elk ca. 12m² en archiefruimte.

Bijzonderheden:
– Betreft de ruimte aan de rechter zijde op de begane grond. (Schoolstraat 19)
– Servicekosten inclusief gas, water, elektra, internet, schoonmaak algemene ruimten.
– Betreft een monumentaal pand
– Het pand heeft een centrumbestemming, dus voor meerdere doeleinden geschikt
– Totale oppervlakte ca. 105m²
– Mogelijkheid tot huren parkeerplekken op eigen terrein
– Mogelijkheid tot gebruik achtergelegen tuin
– Vrij parkeren op nabij gelegen publiek parkeerterrein, blauwe zone in de Schoolstraat

Deze informatie is door ons met de nodige zorgvuldigheid samengesteld, veelal aan de hand van de aan ons ter hand gestelde gegevens en tekeningen. Onzerzijds wordt echter geen enkele aansprakelijkheid aanvaard voor enige onvolledigheid, onjuistheid of anderszins, dan wel de gevolgen daarvan. Dit geldt voor onder meer de opgegeven maten, oppervlakten, isolatie en ouderdom van technische installaties.

Toelichtingsclausule NEN2580: De Meetinstructie is gebaseerd op de NEN2580. De Meetinstructie is bedoeld om een meer eenduidige manier van meten toe te passen voor het geven van een indicatie van de gebruiksoppervlakte. De Meetinstructie sluit verschillen in meetuitkomsten niet volledig uit, door bijvoorbeeld interpretatieverschillen, afrondingen of beperkingen bij het uitvoeren van de meting.

Kenmerken

Algemeen

  • Vraagprijs Prijs op aanvraag
  • Status Verhuurd
  • Aanvaarding In overleg

Bouw

  • Oppervlakte 210 m2

Kantoorruimte

  • Oppervlakte 105 m2
  • Voorzieningen Inbouwarmaturen
  • Aantal verdiepingen 1

Buitenruimte

  • Ligging Winkelgebied stadscentrum

Plattegronden

Kaart

Streetview

Vergelijkbaar bedrijfsaanbod

Beschikbaar
9287 LA
Twijzelerheide
€ 250.000 k.k.
Beschikbaar
9269 SZ
Feanwalden
Prijs op aanvraag
Beschikbaar
9251 MP
Burgum
Prijs op aanvraag