Ben je op zoek naar een charmante, knusse woning in een rustige dorpsomgeving? Singel 7 in Garyp biedt precies dat! Deze woning is ideaal voor wie compact en comfortabel wil wonen, zonder in te leveren op sfeer. Perfect voor starters of klein gezin.
Deze vrijstaande woning is omstreeks 2005 volledig verbouwd en gerenoveerd. De tuin beschikt over een vrijstaande houten berging met overkapping, de kavel is 151m2 groot.
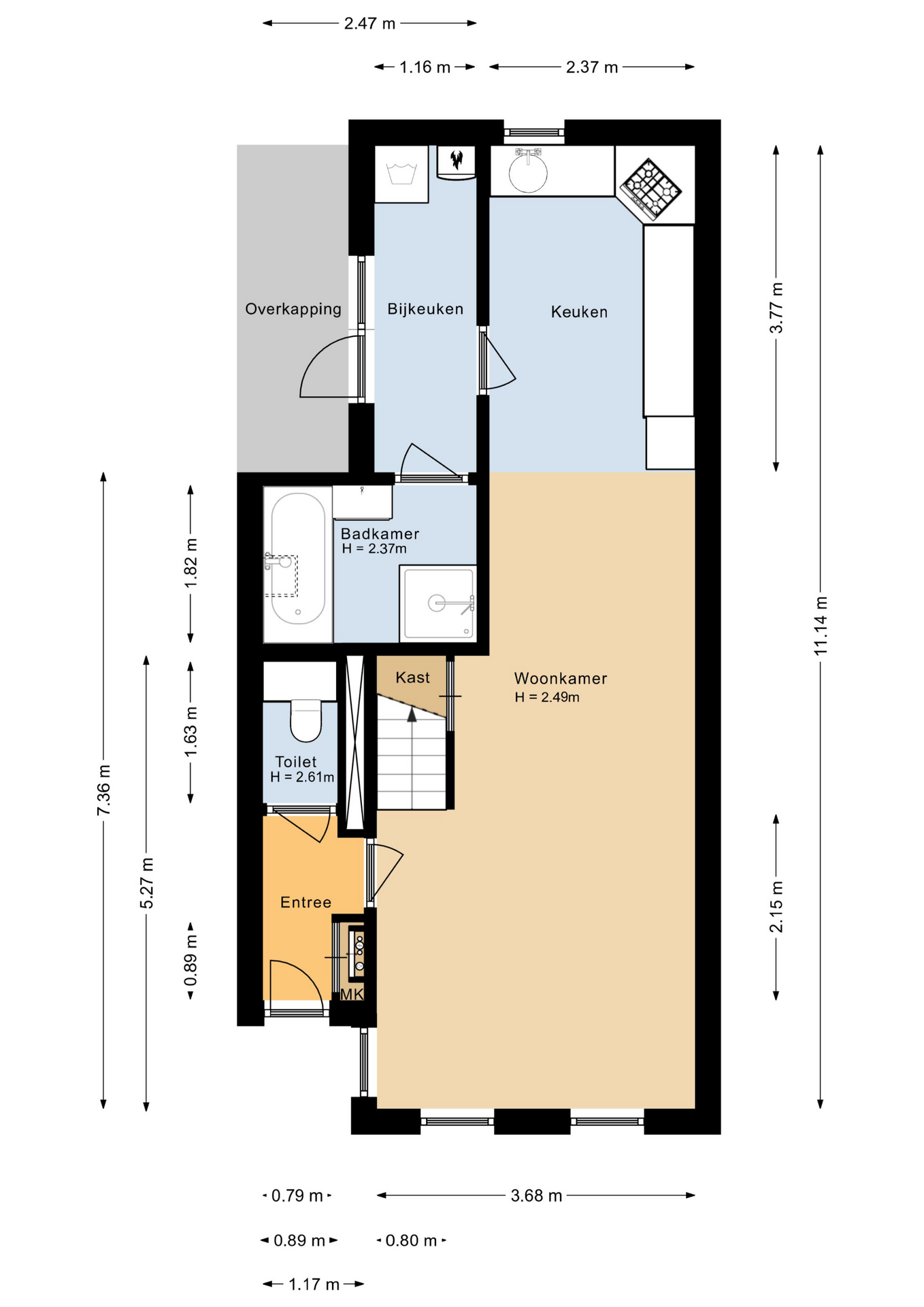
Indeling begane grond:
Entree, met meterkast en toilet, sfeervolle woonkamer met balkenplafond, openkeuken voorzien van inbouwapparatuur (o.a. Koelkast, vriezer, kookplaat, afzuigkap en vaatwasser). Bijkeuken met cv-opstelling (2005), witgoed-aansluitgingen en achterentree, badkamer met vaste wastafel, douchehoek en ligbad.
1e verdieping:
Overloop met bergruimte, 1 slaapkamer aan de voorzijde en 1 slaapkamer aan de achterzijde.
Tuin
De achtertuin is onderhoudsvriendelijk en biedt genoeg ruimte voor een gezellig zitje waar je kunt ontspannen in de buitenlucht. Dankzij de beschutte ligging geniet je van veel privacy.
Locatie
Garyp is een dorp aan de rand van de Wâlden (het Woudengebied). Het ligt prachtig centraal in de provincie tussen Leeuwarden en Drachten. Openbaar vervoer is net buiten het dorp, aan de N31 (Wâldwei), waar een bus tussen Drachten en Leeuwarden rijdt. Er is tevens aanbod in allerlei voorzieningen zoals: een supermarkt, de basisschool, een zwembad, de sportvelden en tennisbanen, het dorpshuis, de kerk en diverse verenigingen.
Burgum ligt slechts op ca. 5 autominuten van Garyp evenals het watersportdorp Earnewâld en natuurgebied “de Âlde Feanen”. Maar ook Leeuwarden, Groningen, Drachten en Heerenveen zijn door de snelwegen allemaal binnen 30 autominuten te bereiken.
Pluspunten van de woning:
• Knusse en sfeervolle woning, ideaal voor starters of kleine gezinnen
• Beschutte, onderhoudsvriendelijke tuin
• Gelegen in een rustige, kindvriendelijke wijk
• Dicht bij natuur en basisvoorzieningen
• Goede verbinding naar omliggende dorpen en steden
Aan deze presentatie kunnen geen rechten worden ontleend.
Toelichtingsclausule NEN2580
De Meetinstructie is gebaseerd op de NEN2580. De Meetinstructie is bedoeld om een meer eenduidige manier van meten toe te passen voor het geven van een indicatie van de gebruiksoppervlakte. De Meetinstructie sluit verschillen in meetuitkomsten niet volledig uit, door bijvoorbeeld interpretatieverschillen, afrondingen of beperkingen bij het uitvoeren van de meting.










