Twee-onder-één kap woning met 4 slaapkamers een garage en energielabel B!
Op goede stand nabij basisschool en kinderopvang staat deze royale 2/1 kapwoning uit 1967 welke nagenoeg voldoet aan de energiezuinigheid die in deze tijd aan woningen worden gesteld. Daarnaast beschikt deze woning over maar liefst 4 slaapkamers en is hierdoor geschikt voor gezinnen of voor diegene die veel thuiswerkt. De woning is gelegen in een kindvriendelijke buurt nabij het centrum van het mooie Tytsjerk. De onderhoudsarme achtertuin is op het zonnige zuiden gesitueerd en biedt veel privacy.
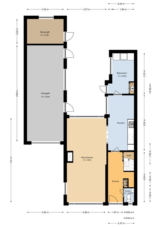
Indeling begane grond: Entree, hal met toilet, meterkast en trapopgang, ruime woonkamer met veel natuurlijk licht, half openkeuken voorzien van inbouwapparatuur, bijkeuken met achter-entree. Toegang tot de ruime verlengde garage met aangebouwde berging geschiedt via de achtertuin.
1e verdieping: Overloop, 3 slaapkamers, badkamer met wastafel, douchehoek, en toilet.
2e verdieping: via vaste trap te bereiken, overloop, 4de slaapkamer en bergruimte.
Kenmerken:
– Energielabel B!;
– Ruime woonkamer veel natuurlijk licht;
– Ruime half open keuken met inbouwapparatuur;
– Slaap/werkkamer op de tweede verdieping;
– Groene omgeving;
– Kavel van 335m2 met tuin op het zuiden.
Reistijden Tytsjerk:
– Zwolle ca. 1 uur
– Amsterdam ca. 1,5 uur
– Apeldoorn ca. 1,5 uur
– Utrecht ca. 1 uur 45 min
– Groningen ca. 40 min
Tytsjerk is een dorp in de gemeente Tytsjerksteradiel en telt ongeveer 1.610 inwoners. Het dorp ligt naast het dorp Hurdegaryp wat een winkelcentrum heeft met onder andere een supermarkt, bakker en drogisterij. Op loopafstand ligt het bos van Ypey, in het park Groot Vijversburg, met haar mooie wandel- en bospaden. Het dorp ligt ongeveer 9 kilometer van Leeuwarden.
Deze informatie is door ons met de nodige zorgvuldigheid samengesteld, veelal aan de hand van de door verkoper aan ons ter hand gestelde gegevens en tekeningen. Onzerzijds wordt echter geen enkele aansprakelijkheid aanvaard voor enige onvolledigheid, onjuistheid of anderszins, dan wel de gevolgen daarvan. Dit geldt voor onder meer de opgegeven maten, oppervlakten, isolatie en ouderdom van technische installaties.
Toelichtingsclausule NEN2580: De Meetinstructie is gebaseerd op de NEN2580. De Meetinstructie is bedoeld om een meer eenduidige manier van meten toe te passen voor het geven van een indicatie van de gebruiksoppervlakte. De Meetinstructie sluit verschillen in meetuitkomsten niet volledig uit, door bijvoorbeeld interpretatieverschillen, afrondingen of beperkingen bij het uitvoeren van de meting.











