**Te koop: Exclusieve rietgedekte landelijke woning aan Mounpaed 1, Oudega**
Stap binnen in een wereld van rust, ruimte en natuurlijke schoonheid met deze unieke, rietgedekte woning aan Mounpaed 1 in het karakteristieke Oudega. Dit prachtige landhuis biedt een zeldzame combinatie van luxe, comfort en landelijke charme, gelegen in het hart van het Friese platteland. Of u nu op zoek bent naar een droomhuis om te ontsnappen aan de drukte van de stad of simpelweg houdt van wonen in de natuur, dit pand biedt alles wat u zoekt en meer.
**Een woning met karakter en stijl**
Vanaf het moment dat u de oprijlaan betreedt, wordt u verwelkomd door de indrukwekkende uitstraling van deze woning. De rieten kap, vele raampartijen en landelijke architectuur vormen een harmonieus geheel, passend bij de natuurlijke omgeving. Deze woning is met zorg en oog voor detail in 2004 gebouwd en beschikt over een energielabel A!!.
**Ruimte en luxe in een serene omgeving**
De woning biedt een riante leefruimte, ideaal voor gezinnen of voor wie op zoek is naar een plek met volop mogelijkheden. De lichte, ruime woonkamer is het hart van het huis, met grote ramen die een panoramisch uitzicht bieden op de omliggende natuur. De openslaande deuren naar de tuin maken de overgang tussen binnen en buiten naadloos, waardoor u in de zomermaanden kunt genieten van het buitenleven.
De woonkeuken is volledig uitgerust met inbouwapparatuur en biedt meer dan genoeg ruimte voor het bereiden van uitgebreide maaltijden. De landelijke sfeer is hier perfect gecombineerd met moderne elementen, waardoor het een heerlijke plek is om te koken en te genieten.
**Slaapkamers en badkamers in een oase van rust**
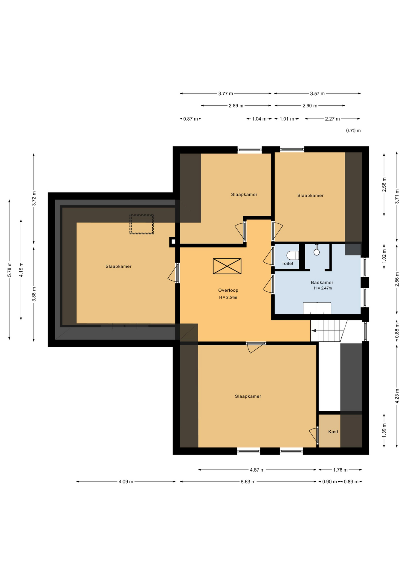
De woning beschikt over meerdere ruime slaapkamers waaronder een slaap- en badkamer op de begane grond. Deze slaapkamer biedt een prachtig uitzicht over de tuin en is een ware oase van rust. De overige slaapkamers zijn perfect geschikt voor kinderen, gasten of als werkruimte.
De badkamer op de begane grond is voorzien van dubbele douche, moderne, luxe faciliteiten, zoals een inloopdouche en een ruim ligbad, waar u volledig kunt ontspannen. Met een smaakvolle afwerking en hoogwaardige materialen is de badkamer een plek van pure verwennerij.
**Prachtige tuin en buitenruimte**
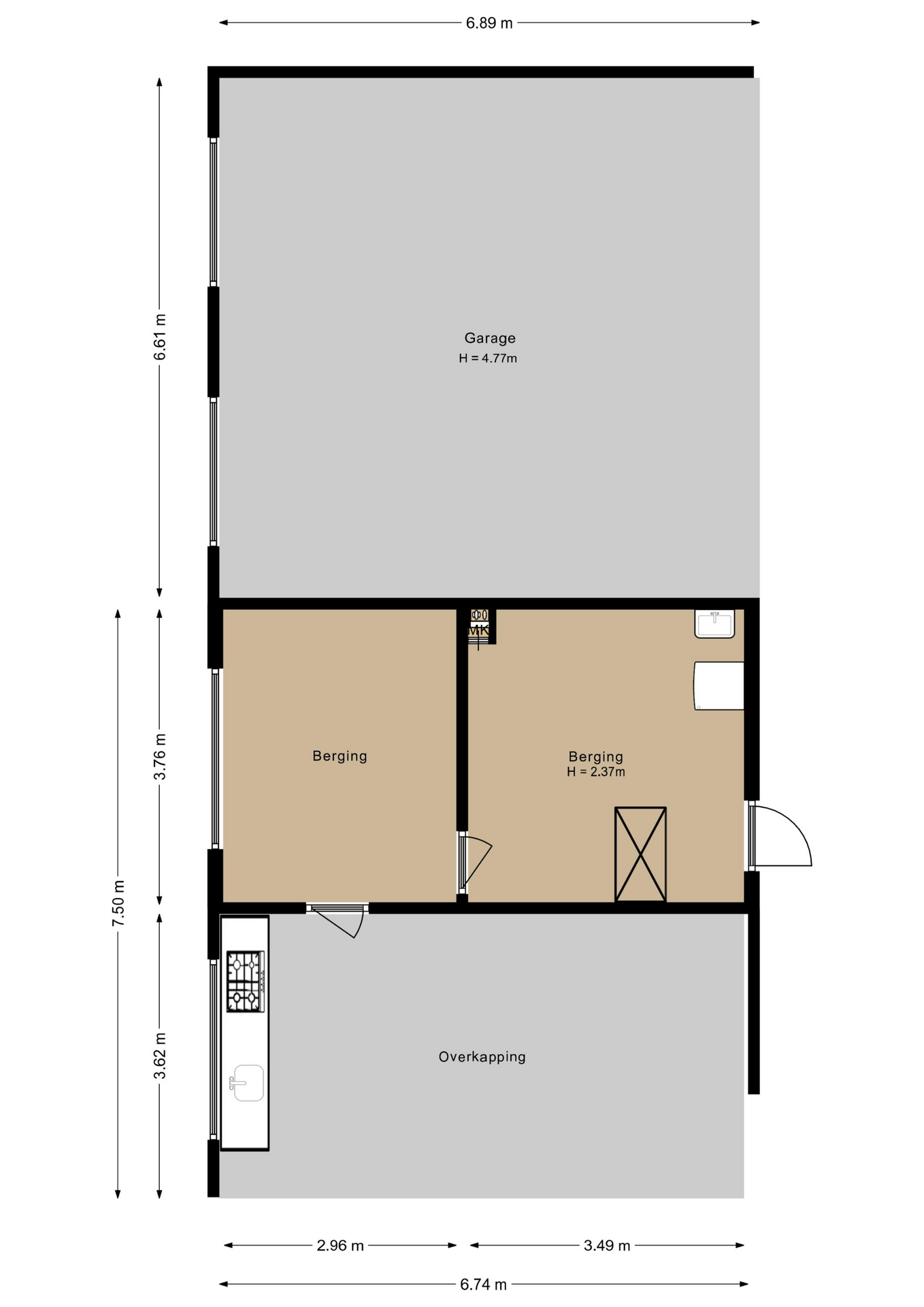
Een van de absolute hoogtepunten van deze woning is de buitenruimte. De royale tuin rondom biedt volop mogelijkheden voor ontspanning, het realiseren van uw eigen moestuin of speelplaats voor de kinderen. De ruime kapschuur met dubbele carport is voorzien van een buitenkeuken met ruime terras. Wat deze schuur extra bijzonder maakt is dat het voorzien is van een eigen bar.
De omliggende natuur biedt tal van recreatiemogelijkheden. Maak wandelingen langs de nabijgelegen natuurgebieden, vaar door de prachtige wateren van Friesland of geniet van de fietspaden die de omgeving doorkruisen.
**Perfecte locatie: rust en bereikbaarheid gecombineerd**
Mounpaed 1 biedt u de ideale balans tussen rust en bereikbaarheid. De woning is gelegen aan een rustige weg, weg van de drukte, maar toch dichtbij alle voorzieningen. Het gezellige dorp Oudega ligt op slechts een paar minuten afstand, met zijn winkels, scholen en gezellige horeca. Bovendien bent u binnen korte tijd in grotere steden zoals Drachten en Leeuwarden, voor nog meer winkels, restaurants en culturele voorzieningen.
Watersportliefhebbers zitten hier op de juiste plek. Oudega ligt dichtbij de Friese meren, waardoor u gemakkelijk kunt genieten van varen, zeilen of andere watersportactiviteiten.
Deze prachtige woning biedt een unieke kans om te wonen in een prachtige landelijke omgeving met alle luxe en comfort die u zich kunt wensen.
**Bijzonderheden van de woning:**
– Rietgedekte woning met authentieke landelijke uitstraling.
– Royale woonoppervlakte en luxe afwerking.
– Ruime en lichte woonkamer met een landelijk uitzicht.
– ruime keuken voorzien van inbouwapparatuur.
– 5 slaapkamers en 2 badkamer .
– Ruim perceel met veel privacy.
– Rustige ligging met voorzieningen en steden in de buurt.
– Nabij de Friese meren.
Reistijden Oudega:
– Zwolle ca. 1 uur
– Amsterdam ca. 1,5 uur
– Apeldoorn ca. 1,5 uur
– Utrecht ca. 1 uur 45 min
– Groningen ca. 40 min
Deze informatie is door ons met de nodige zorgvuldigheid samengesteld, veelal aan de hand van de door verkoper aan ons ter hand gestelde gegevens en tekeningen. Onzerzijds wordt echter geen enkele aansprakelijkheid aanvaard voor enige onvolledigheid, onjuistheid of anderszins, dan wel de gevolgen daarvan. Dit geldt voor onder meer de opgegeven maten, oppervlakten, isolatie en ouderdom van technische installaties.
Toelichtingsclausule NEN2580: De Meetinstructie is gebaseerd op de NEN2580. De Meetinstructie is bedoeld om een meer eenduidige manier van meten toe te passen voor het geven van een indicatie van de gebruiksoppervlakte. De Meetinstructie sluit verschillen in meetuitkomsten niet volledig uit, door bijvoorbeeld interpretatieverschillen, afrondingen of beperkingen bij het uitvoeren van de meting.














