In het dorp Sumar, in een rustige straat staat deze tussenwoning met aangebouwde bijkeuken en stenen berging te koop.
De woning met een lichte doorzon-woonkamer beschikt grotendeels over kunststof kozijnen en zijn er 8 zonnepanelen geplaatst. De diepe achtertuin is gesitueerd op het noorden en beschikt over een achterom. Dit geheel staat op een kavel van 200m2 eigen grond.
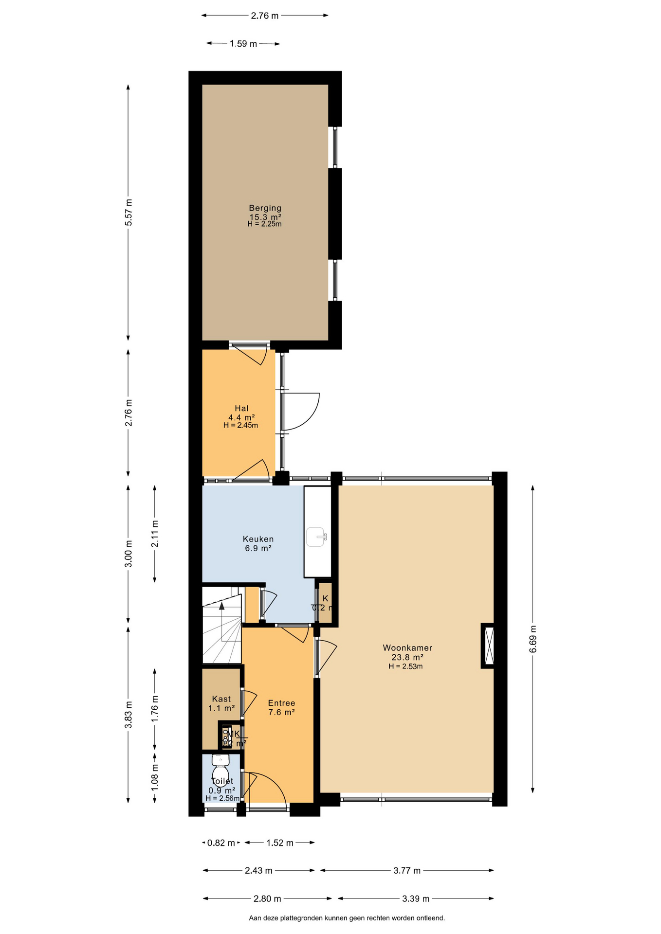
Begane grond: hal, toilet, trapkast, meterkast en trap naar de eerste verdieping. Woonkamer met eetkamer en keuken. De woonkamer en keuken zijn voorzien van een laminaat vloer.
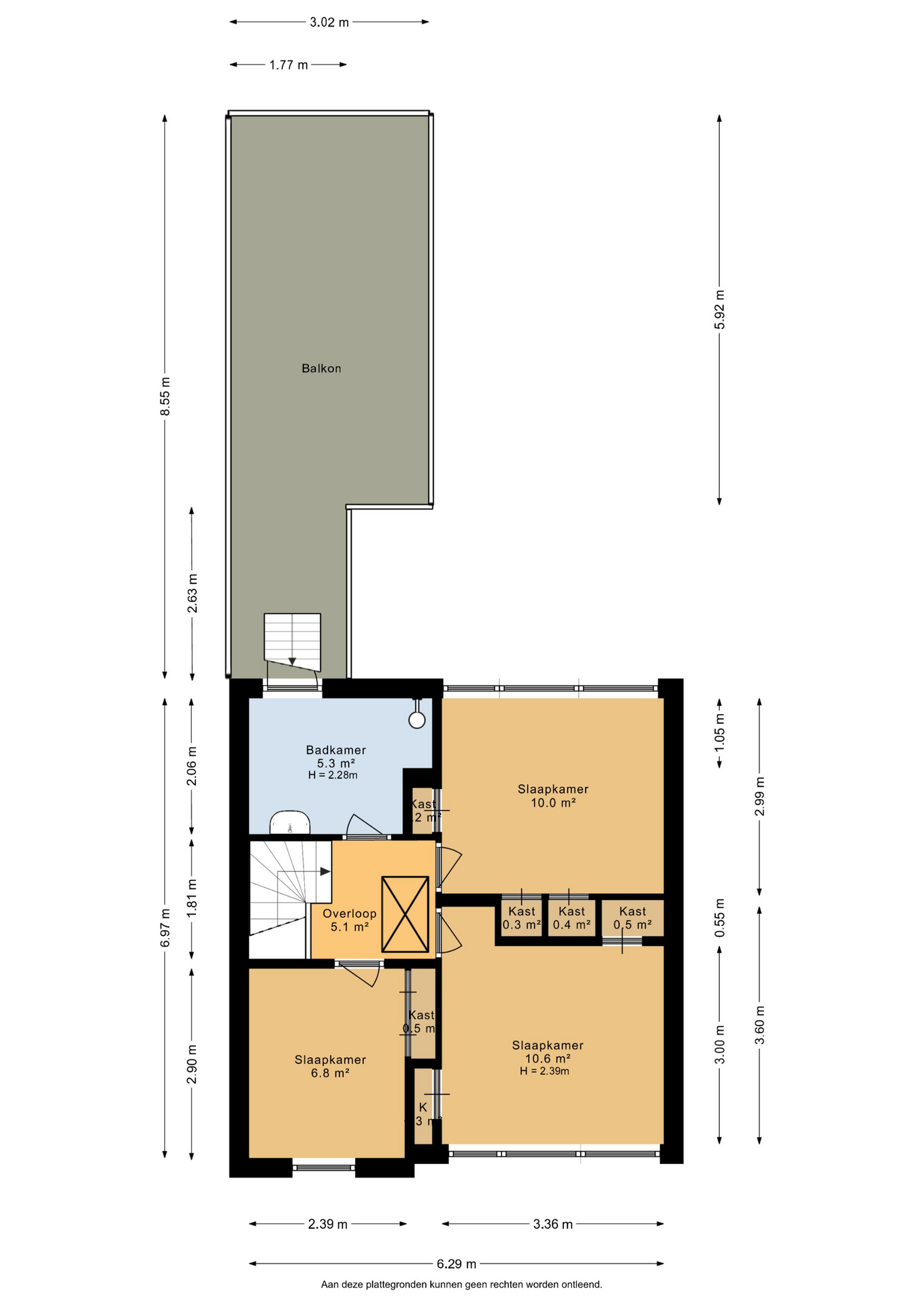
Eerste Verdieping: overloop, 3 slaapkamers voorzien van vaste kasten. Badkamer met wasmachine-aansluiting douche en wastafelmeubel en deur naar platdak.
Zolder: via vlizotrap bereikbare zolderberging.
Sumar is een dorp in de Friese gemeente Tytsjerksteradiel. Het dorp telt bijna 1400 inwoners. Het is centraal gelegen tussen Leeuwarden, Drachten en Groningen. Naar het dorp Burgum met vele voorzieningen rijdt u binnen 5 minuten. Sumar ligt aan het Burgumermeer die in open verbinding ligt met de andere Friese meren.
Deze informatie is door ons met de nodige zorgvuldigheid samengesteld, veelal aan de hand van de door verkoper aan ons ter hand gestelde gegevens en tekeningen. Onzerzijds wordt echter geen enkele aansprakelijkheid aanvaard voor enige onvolledigheid, onjuistheid of anderszins, dan wel de gevolgen daarvan. Dit geldt voor onder meer de opgegeven maten, oppervlakten, isolatie en ouderdom van technische installaties.
Toelichtingsclausule NEN2580
De Meetinstructie is gebaseerd op de NEN2580. De Meetinstructie is bedoeld om een meer eenduidige manier van meten toe te passen voor het geven van een indicatie van de gebruiksoppervlakte. De Meetinstructie sluit verschillen in meetuitkomsten niet volledig uit, door bijvoorbeeld interpretatieverschillen, afrondingen of beperkingen bij het uitvoeren van de meting.











