Ruime half vrijstaande woning met praktijkruimte aan de Wylch 1 in Burgum.
Op een mooie hoek locatie aan De Wylch staat deze royale woning met 5 slaapkamers, bijkeuken! Dit half vrijstaande huis biedt niet alleen een hoog wooncomfort maar door de aangebouwde praktijkruimte met eigen entree is het perfect voor wonen gecombineerd met werken aan huis. n.
Woning met ruimte en comfort
De woning is ruim van opzet en hierdoor ideaal voor grote gezinnen. De woonkamer is voorzien van grote raampartijen die zorgen voor veel daglicht, en de half open keuken biedt alle ruimte om heerlijk te koken en is voorzien van schuifpui naar achtergelegen terras. Op de 1e verdieping beschikt de woning over 3 slaapkamers en werkkamer. De ruime badkamer beschikt over een douchehoek, ligbad, toilet en dubbele wastafel.
De zolderverdieping heeft 2 slaapkamers en cv-ruimte.
Praktijkruimte aan huis:
Wat deze woning extra bijzonder maakt, is de praktijkruimte met eigen entree en wachtruimte. Deze ruimte is volledig af te sluiten van de rest van het huis, waardoor het ideaal is voor bijvoorbeeld een kantoor, salon of atelier. Hier kunt u professioneel klanten ontvangen zonder dat uw privéleven wordt verstoord.
Buitenleven
De woning beschikt over een onderhoudsvriendelijke tuin met diverse terrassen en mooie overkapping. De tuin is op het zuidoosten gesitueerd en op eigen terrein heeft u voldoende parkeergelegenheid.
Ligging
De woning ligt op korte afstand van kinderopvang, huisartsenpraktijk, scholen en winkelcentrum. Daarnaast is de bereikbaarheid goed, zowel met de auto als met het openbaar vervoer.
Indeling begane grond:
Entree, ruime hal met toilet, ruime Z-vormige living met openhaard, half-openkeuken in moderne hoekopstelling en voorzien van diverse inbouwapparatuur waaronder koelkast en vaatwasser. Bijkeuken met wasmachine-aansluiting en deur naar achtertuin, berging en praktijkruimte.
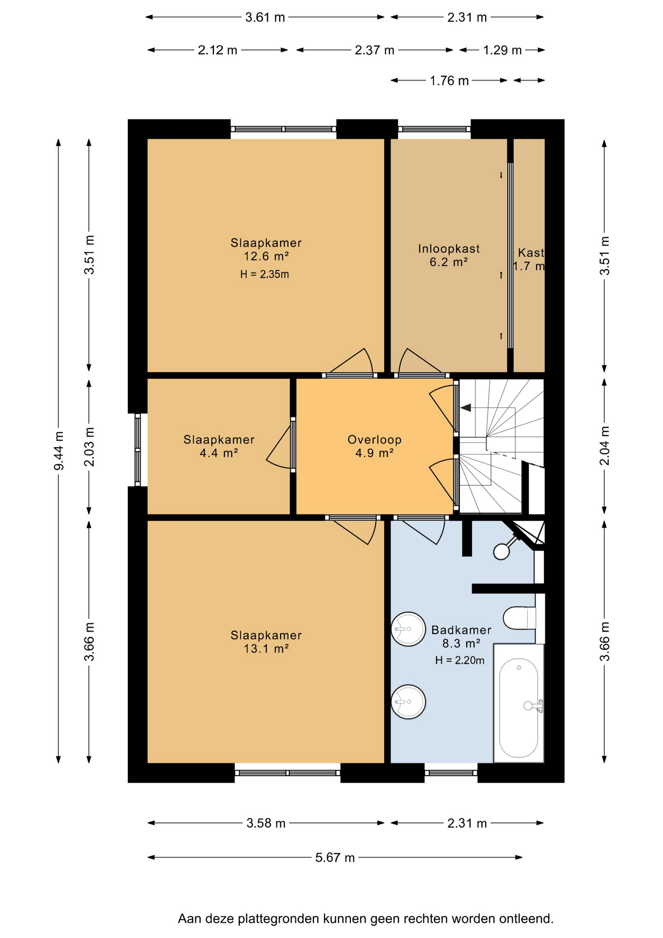
1e verdieping: ruime overloop met 3 slaapkamers en werkkamer, badkamer met dubbele wastafel, 2e toilet, ligbad en separate douche allen v.v. thermostatische kranen.
2e verdieping: overloop met 2 slaapkamers met bergruimte achter knieschotten en cv ruimte.
Bijzonderheden
• Nagenoeg geheel voorzien van Kunststof kozijnen en boeidelen
• Bouwjaar 1979
• Energielabel B en 12 zonnepanelen
• Praktijkruimte met eigen entree
• Royale gezinswoning met veel licht en ruimte
• Onderhoudsvriendelijke tuin
• Centrale en rustige ligging
Reistijden Burgum:
– Zwolle ca. 1 uur
– Amsterdam ca. 1,5 uur
– Apeldoorn ca. 1,5 uur
– Utrecht ca. 1 uur 45 min
– Groningen ca. 40 min
Het dorp Burgum is de hoofdplaats van de gemeente Tytsjerksteradiel met zo’n 10.000 inwoners en is centraal gelegen in de driehoek Leeuwarden, Drachten en Dokkum. Het dorp beschikt over alle mogelijke voorzieningen zoals: scholen, openbaar vervoer, horeca, diverse winkels en sportvoorzieningen, overdekt zwembad en bibliotheek. Het is een dorp met prima uitvalswegen zowel per boot via het kanaal als per auto via de nabij gelegen Centrale As en de A7.
Deze informatie is door ons met de nodige zorgvuldigheid samengesteld, veelal aan de hand van de door verkoper aan ons ter hand gestelde gegevens en tekeningen. Onzerzijds wordt echter geen enkele aansprakelijkheid aanvaard voor enige onvolledigheid, onjuistheid of anderszins, dan wel de gevolgen daarvan. Dit geldt voor onder meer de opgegeven maten, oppervlakten, isolatie en ouderdom van technische installaties.
Toelichtingsclausule NEN2580: De Meetinstructie is gebaseerd op de NEN2580. De Meetinstructie is bedoeld om een meer eenduidige manier van meten toe te passen voor het geven van een indicatie van de gebruiksoppervlakte. De Meetinstructie sluit verschillen in meetuitkomsten niet volledig uit, door bijvoorbeeld interpretatieverschillen, afrondingen of beperkingen bij het uitvoeren van de meting.











